2ND AVE ADU
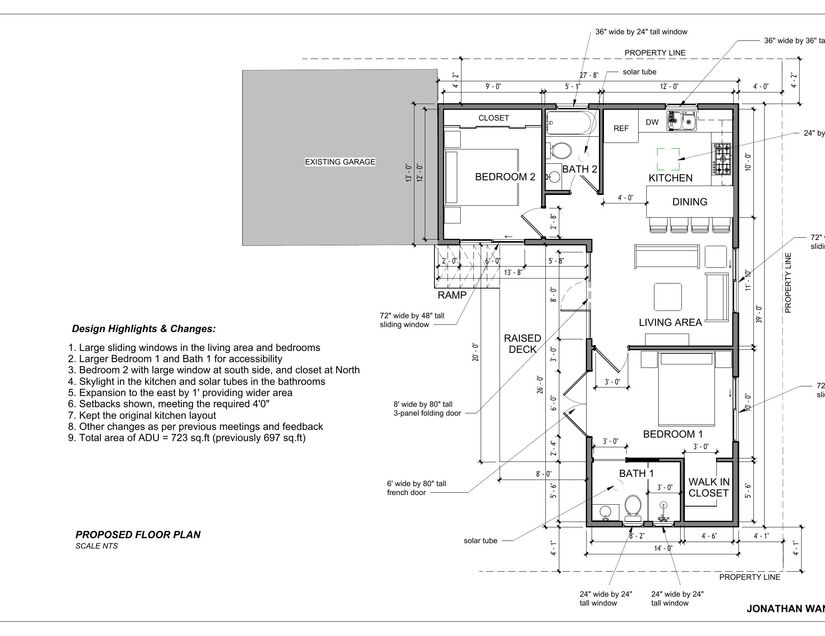
The 2nd Avenue ADU design concept entails the addition of a 2-bedroom Accessory Dwelling Unit (ADU) onto an existing two-car garage, providing additional living spaces for the family and guests. This expansion project aims to seamlessly integrate the ADU with the existing structure while maximizing functionality, comfort, and aesthetic appeal. It is carefully integrated with the existing two-car garage, ensuring a cohesive and harmonious transition between the two structures. Architectural elements such as rooflines, exterior finishes, and window placements are coordinated to maintain visual consistency and enhance curb appeal.
PROJECT
2ND AVE ADU
LOCATION
'-
CLIENT
'-
YEARS
STATUS
SIZE
'-
COLLABORATORS
'-
PHOTOGRAPHERS
EVAN KOESTER
AWARD
'-
PUBLICATIONS
'-
SCOPE
PERMITTING




